SRBIIIW籃式過濾器產品概述
SRBIIIW籃式過濾器是一種為保證管網系統的嚴密性,進出料接口端面型式設計成對焊連接,適用于輸送職業性接觸危害程度I級或II級介質的高低接管平底籃式過濾器,其筒體頂部焊接有連接法蘭,并通過螺栓螺母固定設置有與之配套的法蘭蓋,法蘭與法蘭蓋之間采用墊片密封。筒體左側中上部和右側中下部分別焊接有進、出料接管,內部焊裝有圓環形擋圈以及套裝在其上且將入口和出口分隔開的帶提手的濾籃,濾籃由籃狀濾筒和金屬絲編織網兩部分組成,濾筒頂部平面為圓形,恰好與環形擋圈相配合,確保兩者接觸面之間的緊密貼合,進而保證密封性,使含雜質物料能夠迅速進入濾籃內過濾干凈。本產品有效過濾面積(濾芯的凈過流面積)一般為進口截面積的3倍~10倍,其主要型號有SRBIII5、SRBIV5和SRBIIIW、SRBIVW等。
SRBIIIW籃式過濾器部件材料
| 序號 | 部件名稱 | 材料名稱 | |||||
| 1 | 筒 體 | 20# | Q345 | 304 | 304L | 316 | 316L |
| 2 | 高低接管 | 20# | Q345 | 304 | 304L | 316 | 316L |
| 3 | 環形擋圈 | Q235B | Q345 | 304 | 304L | 316 | 316L |
| 4 | 筒體法蘭 | A105 | Q345 | 304 | 304L | 316 | 316L |
| 5 | 墊 片 | 聚四氟乙烯、金屬環形墊、金屬纏繞墊(帶內外環) | |||||
| 6 | 法 蘭 蓋 | Q235B | Q345 | 304 | 304L | 316 | 316L |
| 7 | 濾 籃 | 304 | 304 | 304 | 304L | 316 | 316L |
| 8 | 底部平板 | Q235B | Q345 | 304 | 304L | 316 | 316L |
| 9 | 排放絲堵 | 304 | 304 | 304 | 304L | 316 | 316L |
SRBIIIW籃式過濾器技術規范
| 公稱壓力PN(MPa) | 1.0 | 1.6 | 2.5 | 4.0 | 2.0 | 5.0 |
| 水壓強度試驗壓力(MPa) | 1.5 | 2.4 | 3.75 | 6.0 | 3.0 | 7.5 |
| 氣密性試驗壓力(MPa) | 1.0 | 1.6 | 2.5 | 4.0 | 2.0 | 5.0 |
| 設計制造 | SH/T 3411-2017石油化工泵用過濾器選用、檢驗及驗收規范 | |||||
| 對焊端部 | 符合GB/T 12459、SH/T 3408、ASME B16.9、ANSI B16.9的規定 | |||||
| 檢驗試驗 | SH/T 3411-2017石油化工泵用過濾器選用、檢驗及驗收規范 | |||||
| 過濾精度 | 2目 ~ 600目 | |||||
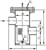
SRBIIIW籃式過濾器主要尺寸
| 公稱壓力 PN | 公稱通徑 DN | 結構尺寸/mm | 排放口 B | ||||
| ? | L | H1 | H2 | H3 | |||
| 10 | 25 | 89 | 220 | 110 | 70 | 280 | R ? |
| 32 | 89 | 220 | 110 | 70 | 285 | R ? | |
| 40 | 114 | 280 | 120 | 100 | 340 | R ? | |
| 50 | 114 | 280 | 120 | 100 | 340 | R ? | |
| 65 | 140 | 330 | 160 | 110 | 400 | R ? | |
| 80 | 168 | 340 | 180 | 140 | 460 | R ? | |
| 100 | 219 | 420 | 220 | 170 | 550 | R ? | |
| 125 | 273 | 500 | 310 | 220 | 720 | R ? | |
| 150 | 273 | 500 | 310 | 220 | 720 | R ? | |
| 200 | 325 | 560 | 390 | 280 | 900 | R ? | |
| 250 | 426 | 660 | 480 | 320 | 1070 | R ? | |
| 300 | 478 | 750 | 640 | 400 | 1360 | R ? | |
| 表中未列出的其他規格參數,請咨詢汗越閥門技術部! | |||||||
SRBIIIW籃式過濾器結構圖


