襯四氟T型過濾器產品概述
襯四氟T型過濾器是一種由金屬殼體承受載荷,并在它與介質接觸的位置包覆有氟塑料層,通過聚四氟乙烯濾筒及濾網把物料中的固體顆粒物截留在其表面,從而保護下游管道設備免受損壞、污染和堵塞,保證介質滿足工藝要求和生產裝置正常穩定運行的襯氟T型過濾器。本產品采用氟塑料作為襯里材料,具有高耐腐蝕性能,而以鋼制三通、法蘭和盲板作為骨架結構,則可以保障其擁有良好的強度。
襯四氟T型過濾器襯里加工采用模壓成型工藝,其先將適量的氟塑料(粉狀、顆粒狀、纖維狀、片狀和碎屑狀等)放入成型的模腔中,然后閉合,放在加熱爐內加熱到相應溫度,并在壓力作用下熔融流動,緩慢充滿整個型腔而取得型腔所賦予的形狀,隨著氟塑料化學反應程度的增加,熔體逐漸失去流動性變成不熔的體型結構而成為固體,經冷卻到合適的溫度打開模具,而得到成品,從而完成模壓過程。
襯四氟T型過濾器部件材料
| 序號 | 部件名稱 | 材料名稱 | |||||
| 1 | 殼 體 | Q235B | 20# | 304 | 304L | 316 | 316L |
| 2 | 法 蘭 | Q235B | A105 | 304 | 304L | 316 | 316L |
| 3 | 濾 座 | Q235B | Q235B | 304 | 304L | 316 | 316L |
| 4 | 襯 里 層 | F46/FEP聚全氟乙丙烯、F4/PTFE聚四氟乙烯、PFA可溶性聚四氟乙烯 | |||||
| 5 | 濾 網 | F46/FEP聚全氟乙丙烯、F4/PTFE聚四氟乙烯、PFA可溶性聚四氟乙烯 | |||||
| 6 | 法 蘭 蓋 | Q235B | Q235B | 304 | 304L | 316 | 316L |
| 7 | 螺 栓 | 35CrMoA | 35CrMoA | 304 | 304 | 316 | 316 |
| 8 | 螺 母 | 35CrMo | 35CrMo | 304 | 304 | 316 | 316 |
襯四氟T型過濾器性能規范
| 公稱壓力PN(MPa) | 0.25 | 0.6 | 1.0 | 1.6 | 2.5 | 2.0 |
| 殼體試驗壓力(MPa) | 0.375 | 0.9 | 1.5 | 2.4 | 3.75 | 3.0 |
| 氣密封試驗壓力(MPa) | 0.25 | 0.6 | 1.0 | 1.6 | 2.5 | 2.0 |
| 設計制造 | HG/T 3704-2003 氟塑料襯里閥門通用技術條件 | |||||
| 法蘭標準 | JB/T 81~82、GB/T 9115~9119、HG/T 20592~20615、SH/T 3406、ASME B16.5等 | |||||
| 檢驗驗收 | HG/T 3704-2003 氟塑料襯里閥門通用技術條件 | |||||
| 過濾精度 | 10目 ~ 200目 | |||||
| 工作溫度 | -29℃ ~ 180℃ | |||||
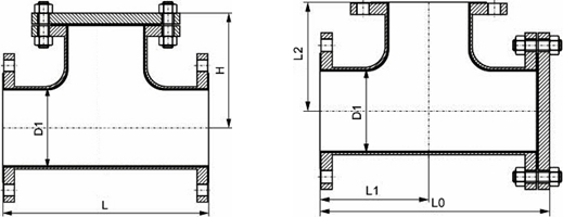
襯四氟T型過濾器主要尺寸
| 公稱壓力 PN | 公稱通徑 DN | 直流式尺寸/mm | 折流式尺寸/mm | ||||
| D1 | H | L | L0 | L1 | L2 | ||
| 20 (Class150) | 50 | 60.3 | 149 | 250 | 277 | 128 | 128 |
| 65 | 76.1 | 170 | 292 | 316 | 146 | 146 | |
| 80 | 88.9 | 181.5 | 312 | 337.5 | 156 | 156 | |
| 100 | 114.3 | 205 | 362 | 388 | 181 | 181 | |
| 125 | 139.7 | 240 | 426 | 453 | 213 | 213 | |
| 150 | 168.3 | 259.5 | 464 | 491.5 | 232 | 232 | |
| 200 | 219.1 | 311 | 560 | 591 | 280 | 280 | |
| 250 | 273.0 | 350.5 | 636 | 668.5 | 318 | 318 | |
| 300 | 323.9 | 400 | 736 | 768 | 368 | 368 | |
| 表中未列出的其他規格參數,請咨詢汗越閥門技術部! | |||||||
襯四氟T型過濾器結構圖


