電動保溫球閥產品概述
電動保溫球閥由外部焊接有金屬夾套的閥體、閥座、球體、閥桿等零部件和電動執行機構組成,電裝接通電源后,通過將指令信號轉化為相應的位移,驅動球桿旋轉,進而控制閥門的開啟和關閉,其閥桿穿過在閥體上部的導孔,并采用填料密封,填料上方設置壓蓋進行固定,閥桿上端與電動執行器相連,下端連接安裝在閥體內部密封座上的球體。該閥閥體外壁焊裝帶有保溫加熱流體進、出口的保溫夾套,此夾套主要用于流通蒸汽或導熱油等,從而即使外界溫度降到了零度以外,它仍能保持流路暢通,閥門啟閉自如,管內物料能通能斷。本產品具有密封性能可靠,能有效防止閥內介質凝固或結晶等功能,因此,特適用于重油、瀝青、粘度食品、膠類等介質。
電動保溫球閥部件材料
| 序號 | 部件名稱 | 材料名稱 | ||||
| 1 | 閥 體 | WCB | CF8 | CF3 | CF8M | CF3M |
| 2 | 閥座壓蓋 | WCB | CF8 | CF3 | CF8M | CF3M |
| 3 | 閥 座 | R-PTFE、PTFE、TEFLON、NYLON、PPL、PEEK、DEVLON、不銹鋼+硬質合金 | ||||
| 4 | 球 體 | 2Cr13 | 304 | 304L | 316 | 316L |
| 5 | 閥 桿 | 2Cr13 | 304 | 304L | 316 | 316L |
| 6 | 填 料 | GRAPHITE、R-PTFE、PTFE、TEFLON、PCTFE | ||||
| 7 | 填料壓板 | WCB | CF8 | CF3 | CF8M | CF3M |
| 8 | 保溫夾套 | Q235B | 304 | 304 | 304 | 304 |
電動保溫球閥性能規范
| 公稱壓力PN(MPa) | 1.6 | 2.5 | 4.0 | 6.3 | 10.0 |
| 殼體試驗壓力(MPa) | 2.4 | 3.75 | 6.0 | 9.45 | 15.0 |
| 高壓液體密封試驗壓力(MPa) | 1.76 | 2.75 | 4.4 | 6.93 | 11.0 |
| 低壓氣體密封試驗壓力(MPa) | 0.4~0.7 | 0.4~0.7 | 0.4~0.7 | 0.4~0.7 | 0.4~0.7 |
| 設計制造 | JB/T 13458、GB/T 12237、GB/T 21385、API 608、ASME B16.34 | ||||
| 結構長度 | JB/T 13458、GB/T 12221、ASME B16.10 | ||||
| 法蘭標準 | JB/T 79、GB/T 9113、HG/T 20592、HG/T 20615、SH/T 3406、ASME B16.5等 | ||||
| 檢驗試驗 | GB/T 13927、GB/T 26480、JB/T 9092、API 598 | ||||
| 電源電壓 | 單相220V、三相380V、遠程DC24V (50Hz) | ||||
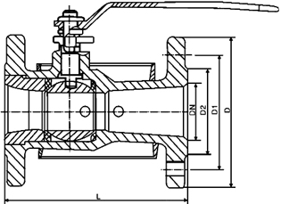
電動保溫球閥主要尺寸
| 公稱壓力 PN | 公稱通徑 DN | 外形及連接尺寸/mm | |||||
| L | D | D1 | D2 | b-f | Z-?d | ||
| 16 | 15 | 140 | 95 | 65 | 45 | 16-2 | 4-14 |
| 20 | 140 | 105 | 75 | 58 | 18-2 | 4-14 | |
| 25 | 160 | 115 | 85 | 68 | 18-2 | 4-14 | |
| 32 | 165 | 140 | 100 | 78 | 18-2 | 4-18 | |
| 40 | 180 | 150 | 110 | 88 | 18-2 | 4-18 | |
| 50 | 200 | 165 | 125 | 102 | 18-2 | 4-18 | |
| 65 | 220 | 185 | 145 | 122 | 18-2 | 8-18 | |
| 80 | 250 | 200 | 160 | 138 | 20-2 | 8-18 | |
| 100 | 280 | 220 | 180 | 158 | 20-2 | 8-18 | |
| 125 | 320 | 250 | 210 | 188 | 22-2 | 8-18 | |
| 150 | 360 | 285 | 240 | 212 | 22-2 | 8-22 | |
| 200 | 400 | 340 | 295 | 268 | 24-2 | 12-22 | |
| 表中未列出的其他規格尺寸,請咨詢汗越閥門技術部! | |||||||
電動保溫球閥結構圖

如果你需訂購我廠保溫球閥產品,咨詢時煩請說明公稱壓力、公稱通徑、閥體材質、內件材料、工作介質、使用溫度等,本產品有一片式和二片式兩種結構形式。

