硬密封保溫球閥產品概述
硬密封保溫球閥是一種用蒸汽或熱油等流體在夾套中流動進行加熱,來確保所輸送的介質不因溫度變化而發生相變,或產生結晶現象的閥門,其主要零部件包括帶有保溫夾套的左、右閥體,以及設置在閥體內部兩閥座之間的球體和與之相接的閥桿。該閥密封副材料配對為金屬對金屬,其閥座和球體的表面采用超音速噴涂技術噴涂碳化鎢硬化涂層,或者噴焊鎳基合金硬化層,從而使它們致密結合,且表面硬度達到HRC65以上,具有很好的耐磨損和耐沖蝕性能。本產品采用兩片式浮動球或固定球結構型式設計,適用于石油、石化、化工及相關工業有些介質含有具有相應硬度的固體顆粒或對工況環境溫度要求較高(≥280℃),且不允許出現結晶或凝固現象的場合。
硬密封保溫球閥部件材料
| 序號 | 部件名稱 | 材料名稱 | ||||
| 1 | 閥 體 | WCB | CF8 | CF3 | CF8M | CF3M |
| 2 | 左 閥 體 | WCB | CF8 | CF3 | CF8M | CF3M |
| 3 | 閥 座 | 2Cr13+HF | 304+HF | 304L+HF | 316+HF | 316L+HF |
| 4 | 球 體 | 2Cr13+HF | 304+HF | 304L+HF | 316+HF | 316L+HF |
| 5 | 閥 桿 | 2Cr13 | 304 | 304L | 316 | 316L |
| 6 | 填 料 | GRAPHITE、PTFE、TEFLON、PCTFE、NYLON | ||||
| 7 | 填料壓蓋 | WCB | CF8 | CF3 | CF8M | CF3M |
| 8 | 蝶形彈簧 | 60Si2Mn | 304 | 316 | 17-7PH | 17-7PH |
| 9 | 保溫夾套 | Q235B | 304 | 304 | 304 | 304 |
| 10 | 螺 栓 | 35CrMoA | 304 | 304 | 316 | 316 |
| 11 | 螺 母 | 35CrMoA | 304 | 304 | 316 | 316 |
硬密封保溫球閥性能規范
| 公稱壓力PN(MPa) | 1.6 | 2.5 | 4.0 | 6.3 | 10.0 |
| 殼體試驗壓力(MPa) | 2.4 | 3.75 | 6.0 | 9.45 | 15.0 |
| 高壓液體密封試驗壓力(MPa) | 1.76 | 2.75 | 4.4 | 6.93 | 11.0 |
| 低壓氣體密封試驗壓力(MPa) | 0.4~0.7 | 0.4~0.7 | 0.4~0.7 | 0.4~0.7 | 0.4~0.7 |
| 設計制造 | JB/T 13458、GB/T 12237、GB/T 21385、API 608、ASME B16.34 | ||||
| 結構長度 | JB/T 13458、GB/T 12221、ASME B16.10 | ||||
| 法蘭標準 | JB/T 79、GB/T 9113、HG/T 20592、HG/T 20615、SH/T 3406、ASME B16.5等 | ||||
| 檢驗試驗 | GB/T 13927、GB/T 26480、JB/T 9092、API 598 | ||||
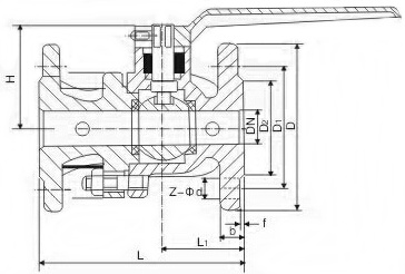
硬密封保溫球閥主要尺寸
| 公稱壓力 PN | 公稱通徑 DN | 外形及連接尺寸/mm | |||||
| L | D | D1 | D2 | b-f | Z-?d | ||
| 16 | 15 | 130 | 95 | 65 | 45 | 16-2 | 4-14 |
| 20 | 140 | 105 | 75 | 58 | 18-2 | 4-14 | |
| 25 | 150 | 115 | 85 | 68 | 18-2 | 4-14 | |
| 32 | 165 | 140 | 100 | 78 | 18-2 | 4-18 | |
| 40 | 180 | 150 | 110 | 88 | 18-2 | 4-18 | |
| 50 | 200 | 165 | 125 | 102 | 18-2 | 4-18 | |
| 65 | 220 | 185 | 145 | 122 | 18-2 | 8-18 | |
| 80 | 250 | 200 | 160 | 138 | 20-2 | 8-18 | |
| 100 | 280 | 220 | 180 | 158 | 20-2 | 8-18 | |
| 125 | 320 | 250 | 210 | 188 | 22-2 | 8-18 | |
| 150 | 360 | 285 | 240 | 212 | 22-2 | 8-22 | |
| 200 | 400 | 340 | 295 | 268 | 24-2 | 12-22 | |
| 250 | 450 | 405 | 355 | 320 | 26-2 | 12-26 | |
| 表中未列出的其他規格尺寸,請咨詢汗越閥門技術部! | |||||||
硬密封保溫球閥結構圖

如果你需訂購我廠保溫球閥產品,咨詢時煩請說明公稱壓力、公稱通徑、閥體材質、內件材料、介質溫度及驅動方式等。本產品有一片式、二片式和三片式三種,結構形式有浮動球和固定球兩種。

