保溫固定球閥產品概述
保溫固定球閥由外圍環繞有且焊接有金屬夾套的左右閥體、帶有固定軸的球體、閥桿、閥座等零部件和驅動裝置組成,其通過夾套與殼體之間的空腔,可以對球閥進行充分的流動加熱,以防止閥內介質結焦或結晶。該閥球體由閥桿和固定軸支撐于閥腔內,球體隨閥桿轉動,以實現啟閉動作,從而達到截斷或接通管路中的介質,它采用固定球的結構型式,具有轉矩小、閥座變形小、密封性能穩定及使用時間長等特點,且閥門的通徑與管徑一致,同時又能有效降低管路中介質熱量損失,因此,特適合用在高壓、大通徑,介質易凝固或易結晶的工況場合。本產品通過保溫夾套能夠對包括法蘭根部在內的整個閥體進行保溫加熱,以保證所輸送的介質不因溫度變化而發生相變,或產生結晶現象。
保溫固定球閥部件材料
| 序號 | 部件名稱 | 材料名稱 | ||||
| 1 | 閥 體 | ASTM A216 WCB | ASTM A351 CF8 | ASTM A351 CF3 | ASTM A351 CF8M | ASTM A351 CF3M |
| 2 | 閥 體 蓋 | ASTM A216 WCB | ASTM A351 CF8 | ASTM A351 CF3 | ASTM A351 CF8M | ASTM A351 CF3M |
| 3 | 閥 座 | R-PTFE、PTFE、TEFLON、NYLON、PPL、PEEK、DEVLON、SST+HF | ||||
| 4 | 球 體 | ASTM A105+ENP | ASTM A182 F304 | ASTM A182 F304L | ASTM A182 F316 | ASTM A182 F316L |
| 5 | 閥 桿 | ASTM A182 F6a | ASTM A182 F304 | ASTM A182 F304L | ASTM A182 F316 | ASTM A182 F316L |
| 6 | 固 定 軸 | ASTM A182 F6a | ASTM A182 F304 | ASTM A182 F304L | ASTM A182 F316 | ASTM A182 F316L |
| 7 | 填 料 | GRAPHITE、R-PTFE、PTFE、TEFLON、PCTFE | ||||
| 8 | 填料壓蓋 | ASTM A216 WCB | ASTM A351 CF8 | ASTM A351 CF3 | ASTM A351 CF8M | ASTM A351 CF3M |
| 9 | 保溫夾套 | ASTM A106-B | ASTM A240 304 | ASTM A240 304 | ASTM A240 304 | ASTM A240 304 |
保溫固定球閥性能規范
| 公稱壓力Class | 150 | 300 | 600 | 900 | 1500 |
| 殼體試驗壓力(MPa) | 3.0 | 7.5 | 16.5 | 22.5 | 39.2 |
| 高壓液體密封試驗壓力(MPa) | 2.2 | 5.5 | 12.1 | 16.5 | 28.6 |
| 低壓氣體密封試驗壓力(MPa) | 0.4~0.7 | 0.4~0.7 | 0.4~0.7 | 0.4~0.7 | 0.4~0.7 |
| 設計制造 | JB/T 13458、GB/T 12237、GB/T 21385、API 608、ASME B16.34 | ||||
| 結構長度 | JB/T 13458、GB/T 12221、ASME B16.10 | ||||
| 連接法蘭 | JB/T 79、GB/T 9113、HG/T 20592、HG/T 20615、SH/T 3406、ASME B16.5等 | ||||
| 檢驗試驗 | GB/T 13927、GB/T 26480、JB/T 9092、API 598 | ||||
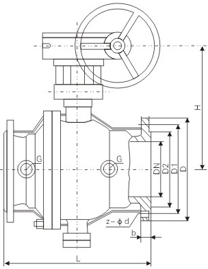
保溫固定球閥主要尺寸
| 公稱壓力 Class | 公稱尺寸 NPS | 連接端規格 A×B(in) | 結構長度 L(mm) | 公稱壓力 Class | 公稱尺寸 NPS | 連接端規格 A×B(in) | 結構長度 L(mm) |
| 150 | 2 | 2×3 | 178 | 150 | 10 | 10×12 | 533 |
| 2? | 2?×4 | 190 | 12 | 12×16 | 610 | ||
| 3 | 3×5 | 203 | 14 | 14×18 | 686 | ||
| 4 | 4×6 | 229 | 16 | 16×20 | 762 | ||
| 5 | 5×8 | 356 | 18 | 18×24 | 864 | ||
| 6 | 6×8 | 394 | 20 | 20×24 | 914 | ||
| 8 | 8×10 | 457 | 24 | 24×28 | 1067 | ||
| 表中未列出的其他規格尺寸,請咨詢汗越閥門技術部! | |||||||
保溫固定球閥結構圖

如果你需訂購我廠保溫球閥產品,咨詢時煩請說明公稱壓力、公稱尺寸、閥體和內件材質、使用介質、工作溫度等,本產品保溫加熱流體進出接口連接方式有焊接、螺紋和法蘭三種。

