Y型三通閥產品概述
Y型三通閥是一種閥體具有三個連接端口,通道呈135°或120°按Y形分布,球體與閥桿為一體鑄造成型,球體中有一條成135度或120度角并通過球中心點的孔道,這條孔道的端口(球芯端口)與閥體上的管口對應,并經驅動裝置帶動球桿轉動135°或120°角則可實現兩種不同流向切換的三通閥。本產品采用Y形流道結構設計,減緩了流體沖進球腔內的流動速度,以防止顆粒狀物料受到損壞。
Y型三通閥流體通道的三個開口設有閥座,閥座的通孔構成管口,閥座朝向球體的一端與球芯的外周面之間設有壓緊塊,壓緊塊朝向球體的側面具有與球芯外周面的弧面配合的抵接面,壓緊塊的另一側與閥座之間設有內密封結構。本產品具有結構簡單,密封可靠,耐磨性強,使用時間長,流體流動阻力小,換向角度多樣及動作可靠等特點,特適用于工作介質為粉體、粒體的氣力輸送系統。
Y型三通閥部件材料
| 序號 | 部件名稱 | 材料名稱 | ||||
| 1 | 閥 體 | ASTM A216 WCB | ASTM A351 CF8 | ASTM A351 CF3 | ASTM A351 CF8M | ASTM A351 CF3M |
| 2 | 閥座壓蓋 | ASTM A216 WCB | ASTM A351 CF8 | ASTM A351 CF3 | ASTM A351 CF8M | ASTM A351 CF3M |
| 3 | 閥 座 | R-PTFE、PTFE、TEFLON、NYLON、PPL、PEEK、DEVLON、SST+HF | ||||
| 4 | 帶柄球體 | ASTM A351 CF8 | ASTM A351 CF8 | ASTM A351 CF3 | ASTM A351 CF8M | ASTM A351 CF3M |
| 5 | 填料壓蓋 | ASTM A216 WCB | ASTM A351 CF8 | ASTM A351 CF3 | ASTM A351 CF8M | ASTM A351 CF3M |
| 6 | 填 料 | GRAPHITE、R-PTFE、PTFE、TEFLON、PCTFE | ||||
| 7 | 閥 蓋 | ASTM A216 WCB | ASTM A351 CF8 | ASTM A351 CF3 | ASTM A351 CF8M | ASTM A351 CF3M |
| 8 | 下 端 蓋 | ASTM A216 WCB | ASTM A351 CF8 | ASTM A351 CF3 | ASTM A351 CF8M | ASTM A351 CF3M |
Y型三通閥性能規范
| 公稱壓力Class | 150 | 300 | 600 | 900 | 1500 |
| 殼體試驗壓力(MPa) | 3.0 | 7.5 | 16.5 | 22.5 | 39.2 |
| 高壓液體密封試驗壓力(MPa) | 2.2 | 5.5 | 12.1 | 16.5 | 28.6 |
| 低壓氣體密封試驗壓力(MPa) | 0.4~0.7 | 0.4~0.7 | 0.4~0.7 | 0.4~0.7 | 0.4~0.7 |
| 設計制造 | GB/T 12237、GB/T 21385、API 608、ASME B16.34 | ||||
| 結構長度 | 按本廠標準Q/CB的規定或按訂貨合同要求 | ||||
| 連接法蘭 | JB/T 79、GB/T 9113、HG/T 20592、HG/T 20615、SH/T 3406、ASME B16.5等 | ||||
| 檢驗試驗 | GB/T 26480、JB/T 9092、API 598 | ||||
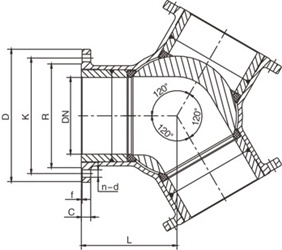
Y型三通閥主要尺寸
| 公稱壓力 Class | 公稱尺寸 NPS | 外形及連接尺寸/mm | |||||
| L | D | K | R | C-f | n-d | ||
| 150 (PN20) | 1 ? | 110 | 125 | 98.4 | 73.0 | 15.9-1.6 | 4-16 |
| 2 | 110 | 150 | 120.7 | 92.1 | 17.5-1.6 | 4-19 | |
| 2 ? | 130 | 180 | 139.7 | 104.8 | 20.7-1.6 | 4-19 | |
| 3 | 150 | 190 | 152.4 | 127.0 | 22.3-1.6 | 4-19 | |
| 4 | 170 | 230 | 190.5 | 157.2 | 22.3-1.6 | 8-19 | |
| 5 | 190 | 255 | 215.9 | 185.7 | 22.3-1.6 | 8-22.5 | |
| 6 | 210 | 280 | 241.3 | 215.9 | 23.9-1.6 | 8-22.5 | |
| 8 | 235 | 345 | 298.5 | 269.9 | 27.0-1.6 | 8-22.5 | |
| 10 | 290 | 405 | 362.0 | 323.8 | 28.6-1.6 | 12-25.5 | |
| 12 | 350 | 485 | 431.8 | 381.0 | 30.2-1.6 | 12-25.5 | |
| 表中未列出的其他規格尺寸,請咨詢汗越閥門技術部! | |||||||
Y型三通閥結構圖

如果你需訂購我廠其他三通球閥系列產品,咨詢時煩請注明公稱通徑、公稱壓力、閥體和內件材質、使用介質、工作溫度、端部連接方式等。本產品安裝前管道內一定要吹掃,防止管內殘留有焊渣、切削渣等,以免損傷閥座。

