電動法蘭球閥產品概述
電動法蘭球閥由端部連接形式為法蘭的鋼制球閥和電動裝置及附加設施等組成,其電裝利用電作為動力源,驅動閥桿帶動球體作正反回轉運動,實現閥門的開關或調節動作。該閥左右閥體內各設有一個閥座,球體被環抱在它們之間,球體上端套接有閥桿,下端連接有穿接在右閥體內的固定軸,右閥體底部設有封蓋,上部安裝有支架,電動執行器固定在支架上,并與閥桿頂端相連接,電裝接通電源后開始運轉,主軸的高速轉動經過齒輪組的減速后,轉速大大下降同時扭矩提高,齒輪組帶動限位齒輪運轉,再由限位齒輪帶動閥桿作90°旋轉,達到開啟或關閉閥門的作用。本產品使用方便,開關迅速,從全開到全關球體只需旋轉90°即可,可便于實現遠程控制。
電動法蘭球閥部件材料
| 序號 | 部件名稱 | 材料名稱 | ||||
| 1 | 閥 體 | A216 WCB | A351 CF8 | A351 CF3 | A351 CF8M | A351 CF3M |
| 2 | 閥 蓋 | A216 WCB | A351 CF8 | A351 CF3 | A351 CF8M | A351 CF3M |
| 3 | 閥 座 | R-PTFE、PTFE、TEFLON、NYLON、PPL、PEEK、DEVLON、SS+HF | ||||
| 4 | 球 體 | A105+ENP | A182 F304 | A182 F304L | A182 F316 | A182 F316L |
| 5 | 閥 桿 | A182 F6a | A182 F304 | A182 F304L | A182 F316 | A182 F316L |
| 6 | 固 定 軸 | A182 F6a | A182 F304 | A182 F304L | A182 F316 | A182 F316L |
| 7 | 填 料 | GRAPHITE、R-PTFE、PTFE、TEFLON、PCTFE | ||||
| 8 | 填料壓蓋 | A216 WCB | A351 CF8 | A351 CF8 | A351 CF8M | A351 CF8M |
| 9 | 止推軸承 | PTFE | PTFE | PTFE | PTFE | PTFE |
電動法蘭球閥性能規范
| 公稱壓力Class | 150 | 300 | 600 | 900 | 1500 |
| 殼體試驗壓力(MPa) | 3.0 | 7.5 | 16.5 | 22.5 | 39.2 |
| 高壓密封試驗壓力(MPa) | 2.2 | 5.5 | 12.1 | 16.5 | 28.6 |
| 低壓密封試驗壓力(MPa) | 0.4~0.7 | 0.4~0.7 | 0.4~0.7 | 0.4~0.7 | 0.4~0.7 |
| 電源電壓 | 單相220 VAC、三相380 VAC、遠程24 VDC (50Hz) | ||||
| 設計制造 | ASME B16.34-2013、API 608-2008、API 6D-2014 | ||||
| 結構長度 | ASME B16.10-2017、API 6D-2014 | ||||
| 法蘭標準 | ASME B16.5-2017、ASME B16.47-2017、ANSI B16.5-2013等 | ||||
| 檢驗試驗 | API 598-2016、API 6D-2014 | ||||
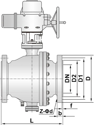
電動法蘭球閥主要尺寸
| 公稱壓力 Class | 公稱尺寸 NPS | 外形及連接尺寸/mm | |||||
| L | D | D1 | D2 | b-f | Z-?d | ||
| 150 | 2 | 178 | 150 | 120.7 | 92.1 | 17.5-1.6 | 4-19 |
| 2 ? | 190 | 180 | 139.7 | 104.8 | 20.7-1.6 | 4-19 | |
| 3 | 203 | 190 | 152.4 | 127.0 | 22.3-1.6 | 4-19 | |
| 4 | 229 | 230 | 190.5 | 157.2 | 22.3-1.6 | 8-19 | |
| 5 | 356 | 255 | 215.9 | 185.7 | 22.3-1.6 | 8-22.5 | |
| 6 | 394 | 280 | 241.3 | 215.9 | 23.9-1.6 | 8-22.5 | |
| 8 | 457 | 345 | 298.5 | 269.9 | 27.0-1.6 | 8-22.5 | |
| 10 | 533 | 405 | 362.0 | 323.8 | 28.6-1.6 | 12-25.5 | |
| 12 | 610 | 485 | 431.8 | 381.0 | 30.2-1.6 | 12-25.5 | |
| 14 | 686 | 535 | 476.3 | 412.8 | 33.4-1.6 | 12-28.5 | |
| 16 | 762 | 595 | 539.8 | 469.9 | 35.0-1.6 | 16-28.5 | |
| 18 | 864 | 635 | 577.9 | 533.4 | 38.1-1.6 | 16-32 | |
| 20 | 914 | 700 | 635.0 | 584.2 | 41.3-1.6 | 20-32 | |
| 22 | 1016 | 750 | 692.2 | 641.4 | 44.5-1.6 | 20-35 | |
| 24 | 1067 | 815 | 749.3 | 692.2 | 46.1-1.6 | 20-35 | |
| 表中未列出的其他規格參數,請咨詢汗越閥門技術部! | |||||||
電動法蘭球閥結構圖


